
60 Caledon St.
Opportunity
Victoria Park Community Homes and Ellis Don joined forces to bid on surplus school lands being sold by the city, inspired by the vision of an environmentally sustainable, safe and age friendly community space, adding social and economic value to the City’s Yoeville neighbourhood. Located at the top of the escarpment and an important part of this urban context, it was important design solutions would feel appropriate and weave within the overall community fabric.

Response
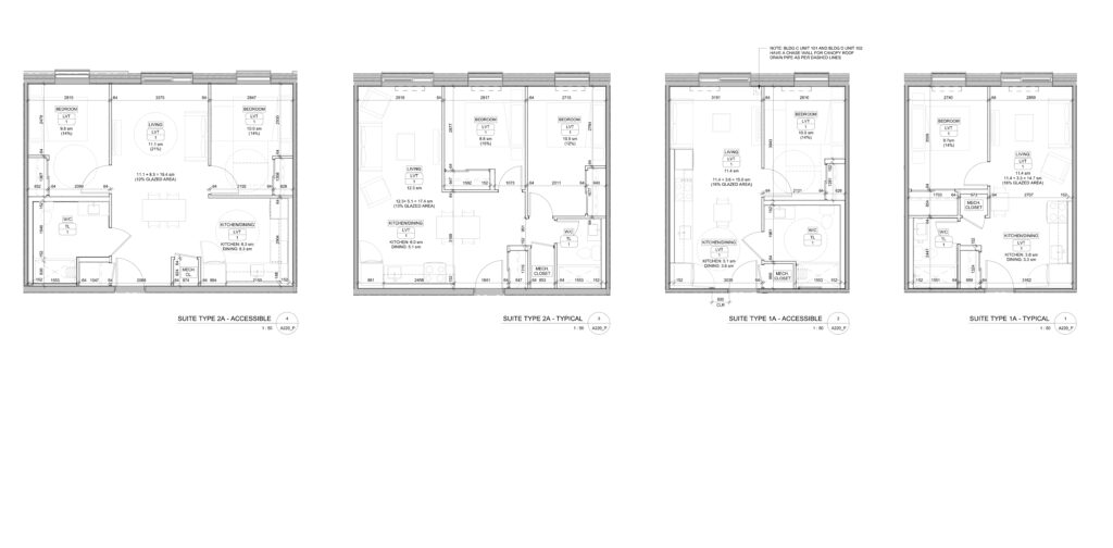
The proposed design includes a mix of apartment buildings and townhomes. The layout of the new complex preserves 47% of the overall lot as dedicated to landscaping creating new community pathways and enhancing its greenspace. There are seven buildings on the site, including four structures arranged as stacked townhouses, and two taller 6-storey apartment buildings and over 26% of each unit type will be accessible. The project currently has conditional site plan approval and is in the design development phase.
Project Facts
-
Markets
-
Services
-
Location
Hamilton, Ontario
-
Sustainable Target
LEED Silver
Team Leads
Partners and Consultants
PARTNERS
EllisDon — Development Manager, Design Builder
CONSULTANTS
Quasar — Mechanical/Electrical Engineering
Entuitive — Structural, Code, Life Safety & Fire Consultant
EXP — Civil Consultant
Pratus Group (part of Quasar) — Energy Modelling, LEED Facilitation
Aercoustics — Acoustic & Vibration Consultant
LEA — Traffic Consultant
GSP Group — Planning/Landscape Consultant
Cinilittle